HVAC
Component
Environmental
Automotive
Measurement

Measurement

HVAC Testing

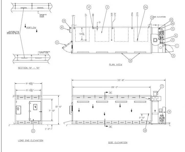
AHRI 310 380 Drawing

AHRI 310/380 (PTAC)

Component Testing

Charge Air to Air Calorimeter

Conditioned Air Supplies

Environmental Testing

Automotive Testing

Air Conditioning Systems

HEB/EHAD Systems

Return to Top